Ismertető
ÚJ ÉPÍTÉSŰ, KÉTLAKÁSOS IKERHÁZ – NYÁREGYHÁZA, KÖZPONTI, CSENDES UTCÁBAN
NINCS ÁTHALLÁS! AZ IKERFELEK CSAK AZ AUTÓBEÁLLÓNÁL ÉRINTKEZNEK!
MODERN, ENERGIATAKARÉKOS OTTHON – KIVÁLÓ ELRENDEZÉSSEL
Nyáregyházán, rendezett, nyugodt környezetben kínálunk megvételre egy új építésű, kétlakásos ikerház egyik lakását, amely ideális választás családok számára, akik tágas, jól átgondolt elrendezésű otthont keresnek.
FŐBB ADATOK
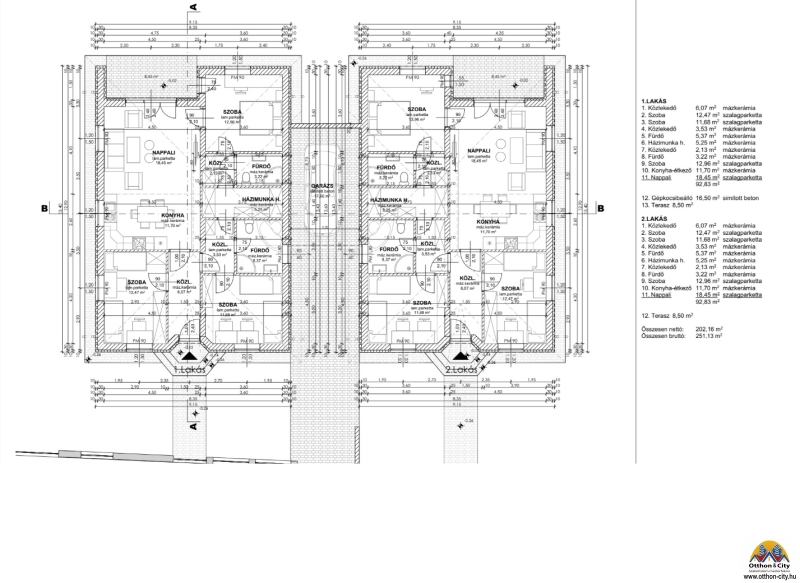
Lakás alapterület: 92,83 m²
Terasz: 8,5 m²
Fedett gépkocsibeálló: ~16,5 m²
Szobák száma: 3 szoba + nappali + külön konyha-étkező
Dupla komfort: 2 fürdőszoba
HELYISÉGEK ELRENDEZÉSE
Az alaprajz kiváló funkcionalitást biztosít:
Tágas, világos nappali (18,45 m²)
Külön konyha-étkező (11,70 m²)
3 kényelmes méretű hálószoba (12–13 m²)
2 fürdőszoba
Háztartási helyiség
Több közlekedő, jól szeparált térhasználat
➡️ Ideális akár nagyobb családnak is, vagy otthoni munkavégzéshez.
MŰSZAKI TARTALOM – MINŐSÉGI KIVITELEZÉS
Az épület korszerű, energiahatékony szerkezettel készül:
30 cm Porotherm Klíma tégla falazat
10 cm grafitos EPS homlokzati szigetelés
25 cm födémszigetelés
Vasbeton alaplemez + több rétegű hő- és vízszigetelés
Tető: betoncserép fedés, szellőző légréteggel
Lábazati XPS szigetelés
➡️ Az ingatlan alacsony rezsijű, hosszú távon gazdaságos fenntartású.
ELŐNYÖK
Új építés – modern műszaki tartalom
Kétlakásos kialakítás – jó szomszédi viszony, mégis privát élettér
Praktikus, jól élhető alaprajz
gépkocsibeálló
Saját terasz
Csendes, családi házas övezet
ELHELYEZKEDÉS
Nyáregyháza:
Nyugodt, kertvárosi környezet
Jó megközelíthetőség Budapest irányába
Ideális választás azoknak, akik a város zajától távol, mégis elérhető közelségben szeretnének élni
KINEK AJÁNLOM?
Családosoknak
Nyugodt környezetet keresőknek
Befektetőknek
ÖSSZEFOGLALVA
Modern, energiatakarékos, jól átgondolt elrendezésű új otthon – kompromisszumok nélkül.
Díjmentes hitelügyintézés – összes bank ajánlata egy helyen
Nem adta még el ingatlanát?
Ne adja el piaci ár alatt!
Hívjon egy díjmentes felmérésre.
További információért, és megtekintésért várom megkeresését, akár hétvégén is!
Részletek
-
Építés éve:
2026 -
Szobák száma:
4 -
Állapot:
új -
Fűtés:
hőszivattyús -
Épület típusa:
ikerház -
Terasz:
9 m2 -
Tájolás:
D -
Szintek száma:
1 -
Telekméret:
500 m2 -
Övezet:
lakó -
Tetőtér:
nincs adat -
Energ. tanúsítvány:
A+
